受付時間:平日9時~17時
売却マイページ
譲渡No.8208

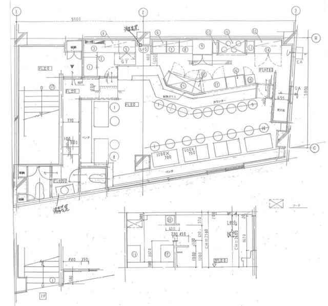
品川区の居酒屋の居抜き売却物件の案件情報 荏原町駅徒歩1分!商店街沿い、居酒屋居抜き!

案件概要

最寄り駅

荏原町 (東急大井町線)
徒歩1

現賃料 / 坪単価

- / 10,481

面積 坪(㎡)

22.99坪76.0m2

希望譲渡額

38.5万円

前業態

居酒屋

募集終了しました

案件詳細情報

所在地

東京23区 品川区

最寄り駅

荏原町 (東急大井町線) 徒歩1分

旗の台 (東急大井町線) 徒歩7分

現賃料 / 坪単価

- / 10,481円

階数 / 建物

地上2階 / 地上3階建

面積 坪(㎡)

22.99坪76.0m2

構造

鉄筋コンクリート造

保証金・敷金

-

契約期間

5年

礼金

-

希望譲渡額

38.5万円

共益費 / 管理費

-

償却

-

更新料

-

情報公開日(更新日)

2020-03-02

現テナントの基本情報

業態

居酒屋

営業年数

-

営業時間

-

席数

-

コメント

-

この案件の取り扱い会社

募集終了しました

別の案件を探す
相談0円 居抜きで売却するなら、早めのご相談がおすすめです! 詳しく見る