受付時間:平日9時~17時
売却マイページ
譲渡No.7764

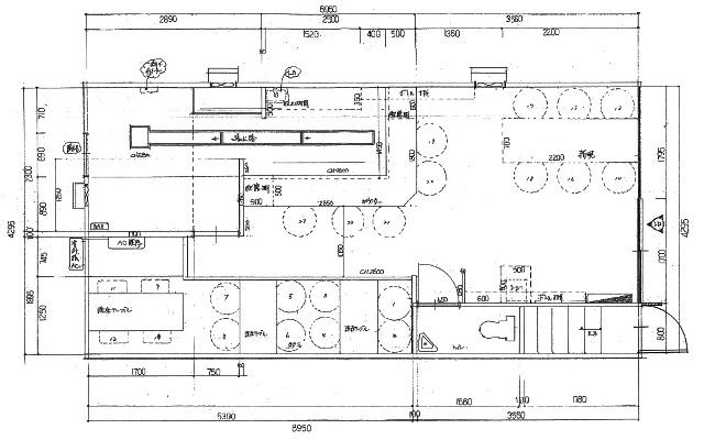
江東区の焼肉の居抜き売却物件の案件情報 東京メトロ東西線門前仲町駅出口徒歩1分。焼肉屋居抜き物件!

案件概要

最寄り駅

門前仲町 (東京メトロ東西線)
徒歩1

現賃料 / 坪単価

- / 28,076

面積 坪(㎡)

11.54坪38.15m2

希望譲渡額

相談

前業態

焼肉

募集終了しました

案件詳細情報

所在地

東京23区 江東区

最寄り駅

門前仲町 (東京メトロ東西線) 徒歩1分

門前仲町 (都営大江戸線) 徒歩3分

現賃料 / 坪単価

- / 28,076円

階数 / 建物

地上1階 /

面積 坪(㎡)

11.54坪38.15m2

構造

木造

保証金・敷金

-

契約期間

定借10年

礼金

-

希望譲渡額

相談

共益費 / 管理費

-

償却

-

更新料

-

情報公開日(更新日)

2019-03-25

現テナントの基本情報

業態

焼肉

営業年数

-

営業時間

-

席数

-

コメント

-

この案件の取り扱い会社

募集終了しました

別の案件を探す
相談0円 居抜きで売却するなら、早めのご相談がおすすめです! 詳しく見る