受付時間:平日9時~17時
売却マイページ
譲渡No.7753

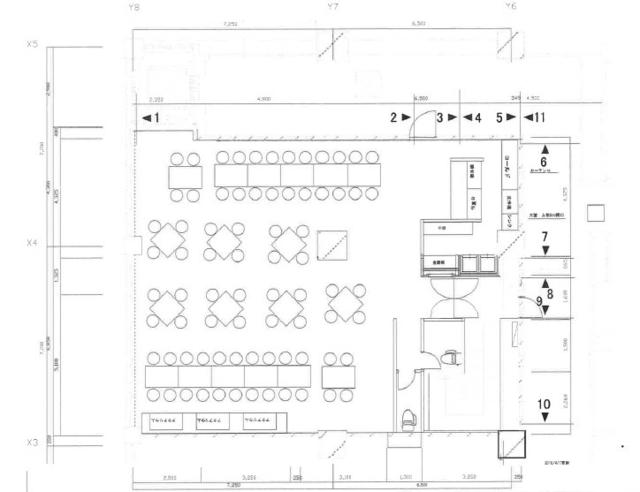
船橋市のレストランの居抜き売却物件の案件情報 駅徒歩1分!バス通り沿い2階店舗

案件概要

最寄り駅

船橋 (JR総武線)
徒歩3

現賃料 / 坪単価

- / 15,162

面積 坪(㎡)

46.134坪152.51m2

希望譲渡額

50万円

前業態

レストラン

募集終了しました

案件詳細情報

所在地

千葉県 船橋市

最寄り駅

船橋 (JR総武線) 徒歩3分

京成船橋 (京成本線) 徒歩1分

現賃料 / 坪単価

- / 15,162円

階数 / 建物

地上2階 / 地上21地下1階建

面積 坪(㎡)

46.134坪152.51m2

構造

鉄筋コンクリート造

保証金・敷金

-

契約期間

定借5年(協議の上更新可)

礼金

-

希望譲渡額

50万円

共益費 / 管理費

-

償却

-

更新料

-

情報公開日(更新日)

2019-04-20

現テナントの基本情報

業態

レストラン

営業年数

-

営業時間

-

席数

-

コメント

-

この案件の取り扱い会社

募集終了しました

別の案件を探す
相談0円 居抜きで売却するなら、早めのご相談がおすすめです! 詳しく見る