受付時間:平日9時~17時
売却マイページ
譲渡No.7682

船橋市のラーメンの居抜き売却物件の案件情報 船橋駅南口の1階!仲通商店街です。

案件概要

最寄り駅

船橋 (JR総武線)
徒歩4

現賃料 / 坪単価

- / 43,279

面積 坪(㎡)

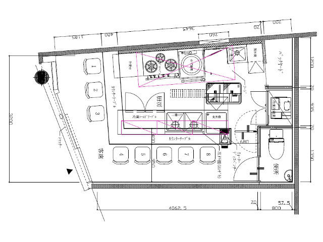
5.49坪18.18m2

希望譲渡額

270万円

前業態

ラーメン

募集終了しました

案件詳細情報

所在地

千葉県 船橋市

最寄り駅

船橋 (JR総武線) 徒歩4分

京成船橋 (京成本線) 徒歩2分

現賃料 / 坪単価

- / 43,279円

階数 / 建物

地上1階 /

面積 坪(㎡)

5.49坪18.18m2

構造

鉄骨造

保証金・敷金

-

契約期間

3年

礼金

-

希望譲渡額

270万円

共益費 / 管理費

-

償却

-

更新料

-

情報公開日(更新日)

2019-04-01

現テナントの基本情報

業態

ラーメン

営業年数

-

営業時間

-

席数

-

コメント

-

この案件の取り扱い会社

募集終了しました

別の案件を探す
相談0円 居抜きで売却するなら、早めのご相談がおすすめです! 詳しく見る