受付時間:平日9時~17時
売却マイページ
譲渡No.7642

文京区の焼き鳥の居抜き売却物件の案件情報 本郷三丁目駅より徒歩2分。本郷通り1階路面店舗。

案件概要

最寄り駅

本郷三丁目 (東京メトロ丸ノ内線)
徒歩2

現賃料 / 坪単価

- / 22,033

面積 坪(㎡)

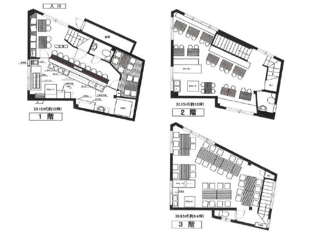
29.41坪97.23m2

希望譲渡額

相談

前業態

焼き鳥

募集終了しました

案件詳細情報

所在地

東京23区 文京区

最寄り駅

本郷三丁目 (東京メトロ丸ノ内線) 徒歩2分

本郷三丁目 (都営大江戸線) 徒歩2分

現賃料 / 坪単価

- / 22,033円

階数 / 建物

地上1-地上3階 /

面積 坪(㎡)

29.41坪97.23m2

構造

保証金・敷金

-

契約期間

定借12年

礼金

-

希望譲渡額

相談

共益費 / 管理費

-

償却

-

更新料

-

情報公開日(更新日)

2019-02-04

現テナントの基本情報

業態

焼き鳥

営業年数

-

営業時間

-

席数

-

コメント

-

この案件の取り扱い会社

募集終了しました

別の案件を探す
相談0円 居抜きで売却するなら、早めのご相談がおすすめです! 詳しく見る