受付時間:平日9時~17時
売却マイページ
譲渡No.7446

品川区のタイ料理の居抜き売却物件の案件情報 中延駅徒歩4分。角地路面で視認性良好の美内装タイ料理居抜き!

案件概要

最寄り駅

中延 (都営浅草線)
徒歩4

現賃料 / 坪単価

- / 14,699

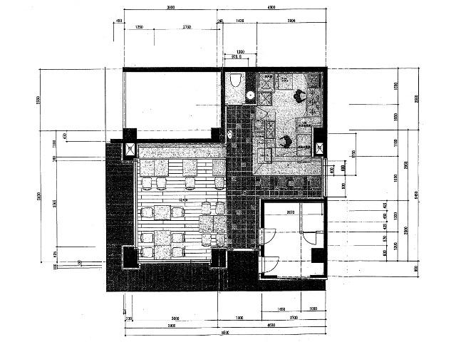
面積 坪(㎡)

15.43坪51.0m2

希望譲渡額

54万円

前業態

タイ料理

募集終了しました

案件詳細情報

所在地

東京23区 品川区

最寄り駅

中延 (都営浅草線) 徒歩4分

中延 (東急大井町線) 徒歩5分

現賃料 / 坪単価

- / 14,699円

階数 / 建物

地上1階 /

面積 坪(㎡)

15.43坪51.0m2

構造

鉄筋コンクリート造

保証金・敷金

-

契約期間

3年

礼金

-

希望譲渡額

54万円

共益費 / 管理費

-

償却

-

更新料

-

情報公開日(更新日)

2018-11-02

現テナントの基本情報

業態

タイ料理

営業年数

-

営業時間

-

席数

-

コメント

-

この案件の取り扱い会社

募集終了しました

別の案件を探す
相談0円 居抜きで売却するなら、早めのご相談がおすすめです! 詳しく見る