受付時間:平日9時~17時
売却マイページ
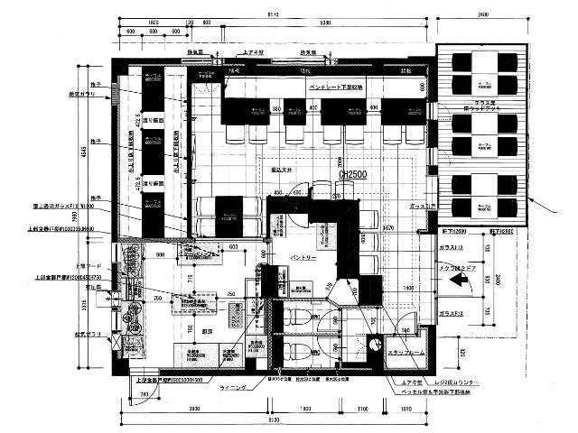
譲渡No.7360

豊島区のタイ料理の居抜き売却物件の案件情報 池袋!美内装、テラス付き物件。

案件概要

最寄り駅

池袋 (東京メトロ副都心線)
徒歩2

現賃料 / 坪単価

- / 20,221

面積 坪(㎡)

20.83坪68.88m2

希望譲渡額

相談

前業態

タイ料理

募集終了しました

案件詳細情報

所在地

東京23区 豊島区

最寄り駅

池袋 (東京メトロ副都心線) 徒歩2分

池袋 (JR山手線) 徒歩6分

現賃料 / 坪単価

- / 20,221円

階数 / 建物

地上1階 /

面積 坪(㎡)

20.83坪68.88m2

構造

鉄骨造

保証金・敷金

-

契約期間

3年

礼金

-

希望譲渡額

相談

共益費 / 管理費

-

償却

-

更新料

-

情報公開日(更新日)

2018-10-03

現テナントの基本情報

業態

タイ料理

営業年数

-

営業時間

-

席数

-

コメント

-

この案件の取り扱い会社

募集終了しました

別の案件を探す
相談0円 居抜きで売却するなら、早めのご相談がおすすめです! 詳しく見る