受付時間:平日9時~17時
売却マイページ
譲渡No.7338

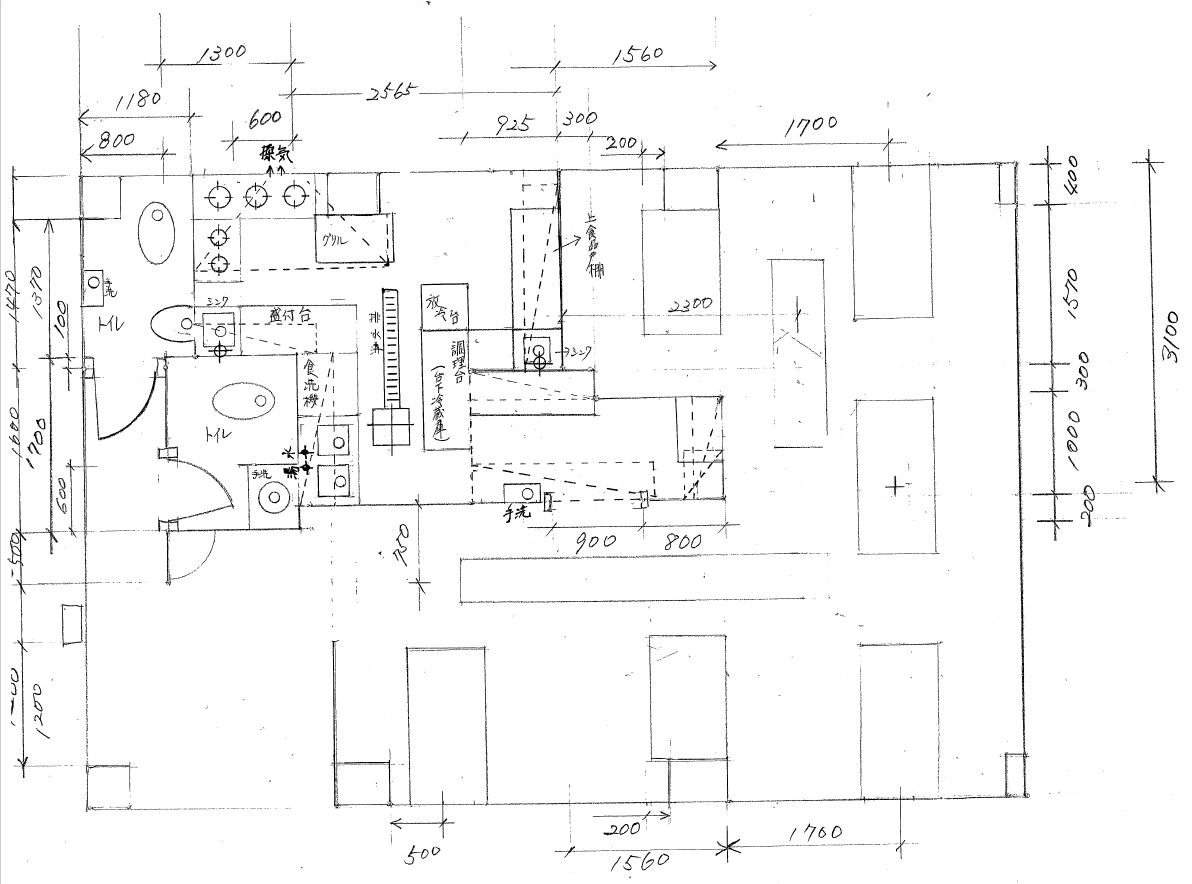
大東市の日本料理の居抜き売却物件の案件情報 住道駅から徒歩約3分!日本料理店の居抜き店舗!

案件概要

最寄り駅

住道 (JR片町線(学研都市線))
徒歩3

現賃料 / 坪単価

- / 7,012

面積 坪(㎡)

19.96坪66.0m2

希望譲渡額

162万円

前業態

日本料理

募集終了しました

案件詳細情報

所在地

大阪府 大東市

最寄り駅

住道 (JR片町線(学研都市線)) 徒歩3分

現賃料 / 坪単価

- / 7,012円

階数 / 建物

地上1階 / 地上4階建

面積 坪(㎡)

19.96坪66.0m2

構造

鉄骨造

保証金・敷金

-

契約期間

2年

礼金

-

希望譲渡額

162万円

共益費 / 管理費

-

償却

-

更新料

-

情報公開日(更新日)

2018-11-28

売却テナントの基本情報

業態

日本料理

営業年数

-

営業時間

-

席数

-

コメント

-

この案件の取り扱い会社

募集終了しました

別の案件を探す
相談0円 居抜きで売却するなら、早めのご相談がおすすめです! 詳しく見る