受付時間:平日9時~17時
売却マイページ
譲渡No.7303

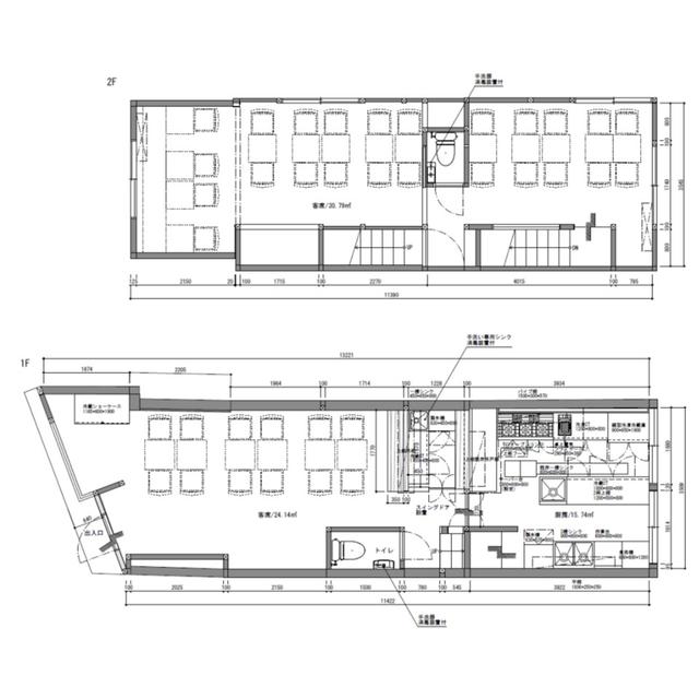
足立区のビストロの居抜き売却物件の案件情報 綾瀬駅から徒歩2分!1-2階ビストロ居抜き店舗

案件概要

最寄り駅

綾瀬 (東京メトロ千代田線)
徒歩2

現賃料 / 坪単価

- / 8,684

面積 坪(㎡)

32.337坪106.9m2

希望譲渡額

50万円

前業態

ビストロ

募集終了しました

案件詳細情報

所在地

東京23区 足立区

最寄り駅

綾瀬 (東京メトロ千代田線) 徒歩2分

綾瀬 (JR常磐線) 徒歩2分

現賃料 / 坪単価

- / 8,684円

階数 / 建物

地上1-地上2階 / 地上3階建

面積 坪(㎡)

32.337坪106.9m2

構造

木造

保証金・敷金

-

契約期間

3年間

礼金

-

希望譲渡額

50万円

共益費 / 管理費

-

償却

-

更新料

-

情報公開日(更新日)

2020-08-28

現テナントの基本情報

業態

ビストロ

営業年数

-

営業時間

-

席数

-

コメント

-

この案件の取り扱い会社

募集終了しました

別の案件を探す
相談0円 居抜きで売却するなら、早めのご相談がおすすめです! 詳しく見る