受付時間:平日9時~17時
売却マイページ
譲渡No.7049

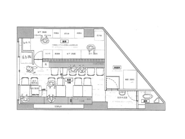
横浜市緑区のカレー店の居抜き売却物件の案件情報 中山駅から徒歩3分。幹線道路沿いの1階カレー屋居抜き店舗です。

案件概要

最寄り駅

中山 (JR横浜線)
徒歩3

現賃料 / 坪単価

- / 100,077,220

面積 坪(㎡)

12.95坪42.81m2

希望譲渡額

260万円

前業態

カレー店

募集終了しました

案件詳細情報

所在地

神奈川県 横浜市緑区

最寄り駅

中山 (JR横浜線) 徒歩3分

現賃料 / 坪単価

- / 100,077,220円

階数 / 建物

地上1階 /

面積 坪(㎡)

12.95坪42.81m2

構造

保証金・敷金

-

契約期間

2年

礼金

-

希望譲渡額

260万円

共益費 / 管理費

-

償却

-

更新料

-

情報公開日(更新日)

2018-03-27

売却テナントの基本情報

業態

カレー店

営業年数

-

営業時間

-

席数

-

コメント

-

この案件の取り扱い会社

募集終了しました

別の案件を探す
相談0円 居抜きで売却するなら、早めのご相談がおすすめです! 詳しく見る