受付時間:平日9時~17時
売却マイページ
譲渡No.7026

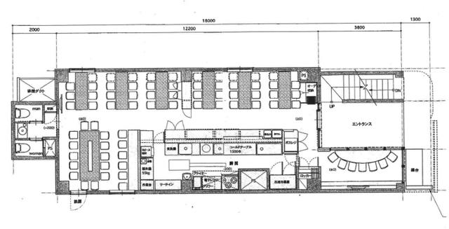
横浜市保土ケ谷区の居酒屋の居抜き売却物件の案件情報 天王町駅から徒歩1分。視認性の良い居酒屋1階路面店、居抜き店舗です。

案件概要

最寄り駅

天王町 (相鉄本線)
徒歩1

現賃料 / 坪単価

- / 22,222

面積 坪(㎡)

24.3坪80.331m2

希望譲渡額

120万円

前業態

居酒屋

募集終了しました

案件詳細情報

所在地

神奈川県 横浜市保土ケ谷区

最寄り駅

天王町 (相鉄本線) 徒歩1分

現賃料 / 坪単価

- / 22,222円

階数 / 建物

地上1階 / 地上4地下1階建

面積 坪(㎡)

24.3坪80.331m2

構造

鉄筋コンクリート造

保証金・敷金

-

契約期間

3年

礼金

-

希望譲渡額

120万円

共益費 / 管理費

-

償却

-

更新料

-

情報公開日(更新日)

2018-04-24

現テナントの基本情報

業態

居酒屋

営業年数

-

営業時間

-

席数

-

コメント

-

この案件の取り扱い会社

募集終了しました

別の案件を探す
相談0円 居抜きで売却するなら、早めのご相談がおすすめです! 詳しく見る