受付時間:平日9時~17時
売却マイページ
譲渡No.6971

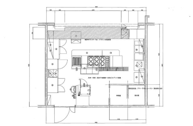
小田原市のハンバーグ/ステーキの居抜き売却物件の案件情報 商業施設内、フードコート店舗の居抜きです。

案件概要

最寄り駅

国府津 (JR東海道本線)
バス7

現賃料 / 坪単価

- / 29,945

面積 坪(㎡)

10.82坪35.75m2

希望譲渡額

216万円

前業態

ハンバーグ/ステーキ

募集終了しました

案件詳細情報

所在地

神奈川県 小田原市

最寄り駅

国府津 (JR東海道本線) バス7分

鴨宮 (JR東海道本線) 徒歩20分 バス10分

現賃料 / 坪単価

- / 29,945円

階数 / 建物

地上1階 /

面積 坪(㎡)

10.82坪35.75m2

構造

保証金・敷金

-

契約期間

定借5年

礼金

-

希望譲渡額

216万円

共益費 / 管理費

-

償却

-

更新料

-

情報公開日(更新日)

2018-02-22

売却テナントの基本情報

業態

ハンバーグ/ステーキ

営業年数

-

営業時間

-

席数

-

コメント

-

この案件の取り扱い会社

募集終了しました

別の案件を探す
相談0円 居抜きで売却するなら、早めのご相談がおすすめです! 詳しく見る