受付時間:平日9時~17時
売却マイページ
譲渡No.6842

西宮市のワインバルの居抜き売却物件の案件情報 甲子園口駅近くの商店街内ワインバル居抜き物件

案件概要

最寄り駅

甲子園口 (JR東海道本線)
徒歩5

現賃料 / 坪単価

- / 6,744

面積 坪(㎡)

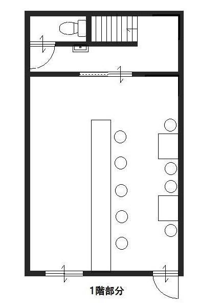
13.612坪45.0m2

希望譲渡額

140万円

前業態

ワインバル

募集終了しました

案件詳細情報

所在地

兵庫県 西宮市

最寄り駅

甲子園口 (JR東海道本線) 徒歩5分

現賃料 / 坪単価

- / 6,744円

階数 / 建物

地上1-地上2階 / 地上2階建

面積 坪(㎡)

13.612坪45.0m2

構造

木造

保証金・敷金

-

契約期間

礼金

-

希望譲渡額

140万円

共益費 / 管理費

-

償却

-

更新料

-

情報公開日(更新日)

2017-11-22

現テナントの基本情報

業態

ワインバル

営業年数

-

営業時間

-

席数

-

コメント

-

この案件の取り扱い会社

募集終了しました

別の案件を探す
相談0円 居抜きで売却するなら、早めのご相談がおすすめです! 詳しく見る