受付時間:平日9時~17時
売却マイページ
譲渡No.6757

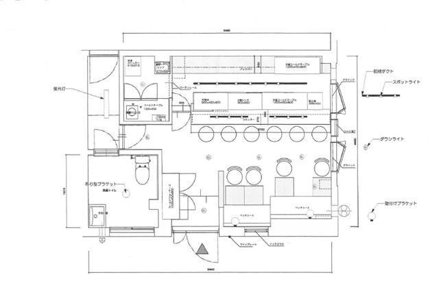
狛江市のバーの居抜き売却物件の案件情報 1階角地で視認性良好。バーの居抜き店舗です!

案件概要

最寄り駅

喜多見 (小田急本線・小田原線)
徒歩7

現賃料 / 坪単価

- / 12,982

面積 坪(㎡)

8.319坪27.5m2

希望譲渡額

250万円

前業態

バー

募集終了しました

案件詳細情報

所在地

東京都下 狛江市

最寄り駅

喜多見 (小田急本線・小田原線) 徒歩7分

狛江 (小田急本線・小田原線) 徒歩10分

現賃料 / 坪単価

- / 12,982円

階数 / 建物

地上1階 / 地上3地下1階建

面積 坪(㎡)

8.319坪27.5m2

構造

鉄骨造

保証金・敷金

-

契約期間

3年

礼金

-

希望譲渡額

250万円

共益費 / 管理費

-

償却

-

更新料

-

情報公開日(更新日)

2018-01-04

売却テナントの基本情報

業態

バー

営業年数

-

営業時間

-

席数

-

コメント

-

この案件の取り扱い会社

募集終了しました

別の案件を探す
相談0円 居抜きで売却するなら、早めのご相談がおすすめです! 詳しく見る