受付時間:平日9時~17時
売却マイページ
譲渡No.665

文京区のカフェの居抜き売却物件の案件情報 諸条件はご相談ください

案件概要

最寄り駅

御茶ノ水 (東京メトロ丸ノ内線)
徒歩6

現賃料 / 坪単価

- / 15,750

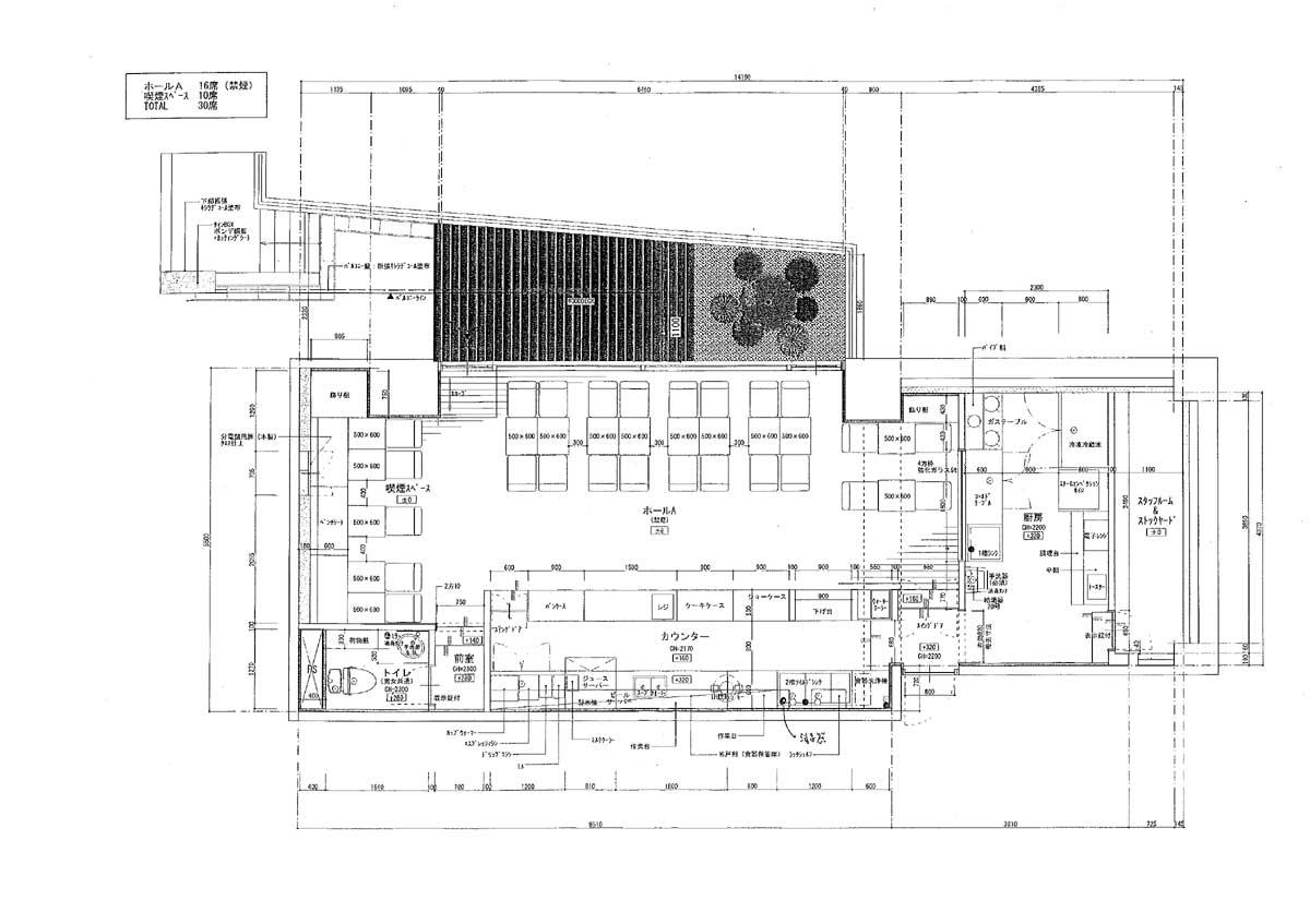
面積 坪(㎡)

23.83坪78.78m2

希望譲渡額

400万円

前業態

カフェ

募集終了しました

案件詳細情報

所在地

東京23区 文京区

最寄り駅

御茶ノ水 (東京メトロ丸ノ内線) 徒歩6分

末広町 (東京メトロ銀座線) 徒歩6分

現賃料 / 坪単価

- / 15,750円

階数 / 建物

地下1階 / 地上9地下1階建

面積 坪(㎡)

23.83坪78.78m2

構造

鉄筋コンクリート造

保証金・敷金

-

契約期間

2年

礼金

-

希望譲渡額

400万円

共益費 / 管理費

-

償却

-

更新料

-

情報公開日(更新日)

2009-04-09

現テナントの基本情報

業態

カフェ

営業年数

-

営業時間

-

席数

-

コメント

-

この案件の取り扱い会社

募集終了しました

別の案件を探す
相談0円 居抜きで売却するなら、早めのご相談がおすすめです! 詳しく見る