受付時間:平日9時~17時
売却マイページ
譲渡No.6562

練馬区のイタリアンの居抜き売却物件の案件情報 大通り沿い、イタリアン居抜き店舗です!

案件概要

最寄り駅

大泉学園 (西武池袋線)
徒歩9

現賃料 / 坪単価

- / 8,593

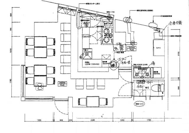
面積 坪(㎡)

12.19坪40.3m2

希望譲渡額

90万円

前業態

イタリアン

募集終了しました

案件詳細情報

所在地

東京23区 練馬区

最寄り駅

大泉学園 (西武池袋線) 徒歩9分

現賃料 / 坪単価

- / 8,593円

階数 / 建物

地下1階 / 地上3地下1階建

面積 坪(㎡)

12.19坪40.3m2

構造

鉄筋コンクリート造

保証金・敷金

-

契約期間

3年

礼金

-

希望譲渡額

90万円

共益費 / 管理費

-

償却

-

更新料

-

情報公開日(更新日)

2017-07-03

現テナントの基本情報

業態

イタリアン

営業年数

-

営業時間

-

席数

-

コメント

-

この案件の取り扱い会社

募集終了しました

別の案件を探す
相談0円 居抜きで売却するなら、早めのご相談がおすすめです! 詳しく見る