受付時間:平日9時~17時
売却マイページ
譲渡No.6410

大和市の寿司の居抜き売却物件の案件情報 駅から徒歩3分!1階路面店舗!

案件概要

最寄り駅

南林間 (小田急江ノ島線)
徒歩3

現賃料 / 坪単価

- / 9,182

面積 坪(㎡)

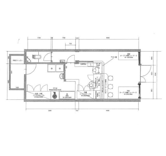
8.17坪27.0m2

希望譲渡額

195万円

前業態

寿司

募集終了しました

案件詳細情報

所在地

神奈川県 大和市

最寄り駅

南林間 (小田急江ノ島線) 徒歩3分

現賃料 / 坪単価

- / 9,182円

階数 / 建物

地上1階 / 地上2階建

面積 坪(㎡)

8.17坪27.0m2

構造

木造

保証金・敷金

-

契約期間

3年

礼金

-

希望譲渡額

195万円

共益費 / 管理費

-

償却

-

更新料

-

情報公開日(更新日)

2017-02-13

売却テナントの基本情報

業態

寿司

営業年数

-

営業時間

-

席数

-

コメント

-

この案件の取り扱い会社

募集終了しました

別の案件を探す
相談0円 居抜きで売却するなら、早めのご相談がおすすめです! 詳しく見る