受付時間:平日9時~17時
売却マイページ
譲渡No.6275

豊島区の韓国料理の居抜き売却物件の案件情報 池袋サンシャイン60通りすぐ!地下1階韓国料理居抜き

案件概要

最寄り駅

池袋 (JR山手線)
徒歩4

現賃料 / 坪単価

- / 42,520

面積 坪(㎡)

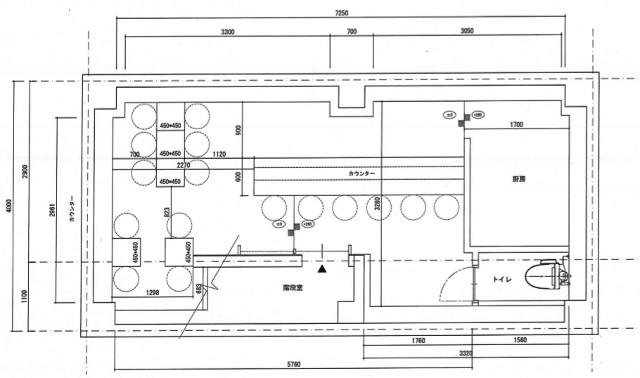
10.16坪33.6m2

希望譲渡額

205.2万円

前業態

韓国料理

募集終了しました

案件詳細情報

所在地

東京23区 豊島区

最寄り駅

池袋 (JR山手線) 徒歩4分

池袋 (JR埼京線) 徒歩4分

現賃料 / 坪単価

- / 42,520円

階数 / 建物

地下1階 /

面積 坪(㎡)

10.16坪33.6m2

構造

鉄筋コンクリート造

保証金・敷金

-

契約期間

2年

礼金

-

希望譲渡額

205.2万円

共益費 / 管理費

-

償却

-

更新料

-

情報公開日(更新日)

2016-12-13

現テナントの基本情報

業態

韓国料理

営業年数

-

営業時間

-

席数

-

コメント

-

この案件の取り扱い会社

募集終了しました

別の案件を探す
相談0円 居抜きで売却するなら、早めのご相談がおすすめです! 詳しく見る