受付時間:平日9時~17時
売却マイページ
譲渡No.6269

江東区の鉄板焼きの居抜き売却物件の案件情報 木場駅、永代通り沿いの美内装1階路面物件!

案件概要

最寄り駅

木場 (東京メトロ東西線)
徒歩4

現賃料 / 坪単価

- / 23,379

面積 坪(㎡)

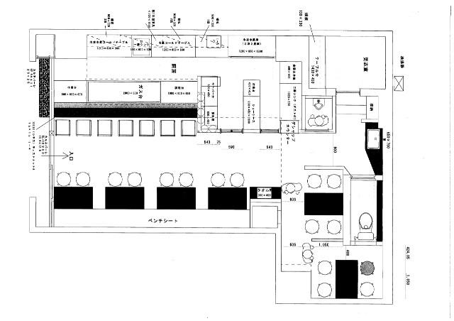
16.63坪55.0m2

希望譲渡額

324万円

前業態

鉄板焼き

募集終了しました

案件詳細情報

所在地

東京23区 江東区

最寄り駅

木場 (東京メトロ東西線) 徒歩4分

東陽町 (東京メトロ東西線) 徒歩5分

現賃料 / 坪単価

- / 23,379円

階数 / 建物

地上1階 /

面積 坪(㎡)

16.63坪55.0m2

構造

鉄筋コンクリート造

保証金・敷金

-

契約期間

3年

礼金

-

希望譲渡額

324万円

共益費 / 管理費

-

償却

-

更新料

-

情報公開日(更新日)

2016-12-22

売却テナントの基本情報

業態

鉄板焼き

営業年数

-

営業時間

-

席数

-

コメント

-

この案件の取り扱い会社

募集終了しました

別の案件を探す
相談0円 居抜きで売却するなら、早めのご相談がおすすめです! 詳しく見る