受付時間:平日9時~17時
売却マイページ
譲渡No.6195

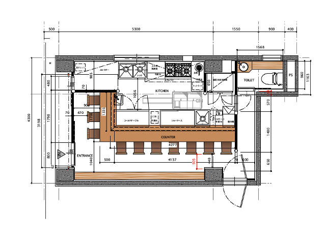
大田区の居酒屋の居抜き売却物件の案件情報 間口4Mとれ視認性良好!美内装の居酒屋居抜き店舗!

案件概要

最寄り駅

大森 (JR京浜東北・根岸線)
徒歩5

現賃料 / 坪単価

- / 19,849

面積 坪(㎡)

9.25坪30.58m2

希望譲渡額

270万円

前業態

居酒屋

募集終了しました

案件詳細情報

所在地

東京23区 大田区

最寄り駅

大森 (JR京浜東北・根岸線) 徒歩5分

現賃料 / 坪単価

- / 19,849円

階数 / 建物

地上1階 /

面積 坪(㎡)

9.25坪30.58m2

構造

鉄筋コンクリート造

保証金・敷金

-

契約期間

3年

礼金

-

希望譲渡額

270万円

共益費 / 管理費

-

償却

-

更新料

-

情報公開日(更新日)

2016-09-05

現テナントの基本情報

業態

居酒屋

営業年数

-

営業時間

-

席数

-

コメント

-

この案件の取り扱い会社

募集終了しました

別の案件を探す
相談0円 居抜きで売却するなら、早めのご相談がおすすめです! 詳しく見る