受付時間:平日9時~17時
売却マイページ
譲渡No.6102

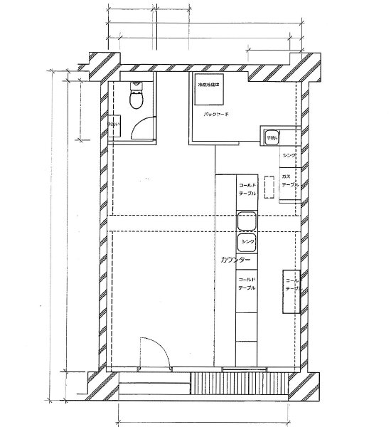
川崎市麻生区のダイニングバーの居抜き売却物件の案件情報 駅近、1階!ダイニングバー居抜き店舗

案件概要

最寄り駅

栗平 (小田急多摩線)
徒歩1

現賃料 / 坪単価

- / 7,524

面積 坪(㎡)

15.79坪52.23m2

希望譲渡額

115万円

前業態

ダイニングバー

募集終了しました

案件詳細情報

所在地

神奈川県 川崎市麻生区

最寄り駅

栗平 (小田急多摩線) 徒歩1分

現賃料 / 坪単価

- / 7,524円

階数 / 建物

地上1階 / 地上6階建

面積 坪(㎡)

15.79坪52.23m2

構造

鉄骨鉄筋コンクリート造

保証金・敷金

-

契約期間

5年

礼金

-

希望譲渡額

115万円

共益費 / 管理費

-

償却

-

更新料

-

情報公開日(更新日)

2016-07-13

売却テナントの基本情報

業態

ダイニングバー

営業年数

-

営業時間

-

席数

-

コメント

-

この案件の取り扱い会社

募集終了しました

別の案件を探す
相談0円 居抜きで売却するなら、早めのご相談がおすすめです! 詳しく見る