受付時間:平日9時~17時
売却マイページ
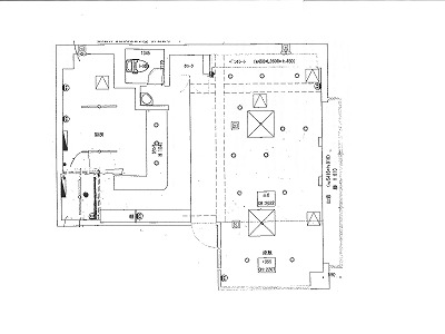
譲渡No.6088

川西市の重飲食の居抜き売却物件の案件情報 川西能勢口駅徒歩4分!中華料理家の居抜き店舗物件です!!

案件概要

最寄り駅

川西能勢口 (阪急宝塚本線)
徒歩4

現賃料 / 坪単価

- / 9,194

面積 坪(㎡)

18.83坪62.25m2

希望譲渡額

250万円

前業態

重飲食

募集終了しました

案件詳細情報

所在地

兵庫県 川西市

最寄り駅

川西能勢口 (阪急宝塚本線) 徒歩4分

川西能勢口 (能勢電鉄妙見線) 徒歩4分

現賃料 / 坪単価

- / 9,194円

階数 / 建物

地上2階 /

面積 坪(㎡)

18.83坪62.25m2

構造

保証金・敷金

-

契約期間

礼金

-

希望譲渡額

250万円

共益費 / 管理費

-

償却

-

更新料

-

情報公開日(更新日)

2016-06-09

現テナントの基本情報

業態

重飲食

営業年数

-

営業時間

-

席数

-

コメント

-

この案件の取り扱い会社

募集終了しました

相談0円 居抜きで売却するなら、早めのご相談がおすすめです! 詳しく見る