受付時間:平日9時~17時
売却マイページ
譲渡No.5866

府中市のダイニングレストランの居抜き売却物件の案件情報 正面に大きく看板を設置でき視認性良好!競合店も少なく、穴場の立地

案件概要

最寄り駅

東府中 (京王本線)
徒歩4

現賃料 / 坪単価

- / 11,925

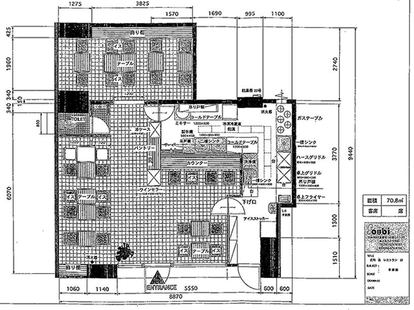
面積 坪(㎡)

20.83坪68.89m2

希望譲渡額

108万円

前業態

ダイニングレストラン

募集終了しました

案件詳細情報

所在地

東京都下 府中市

最寄り駅

東府中 (京王本線) 徒歩4分

東府中 (京王競馬場線) 徒歩4分

現賃料 / 坪単価

- / 11,925円

階数 / 建物

地上1階 /

面積 坪(㎡)

20.83坪68.89m2

構造

鉄筋鉄骨コンクリート造

保証金・敷金

-

契約期間

3年

礼金

-

希望譲渡額

108万円

共益費 / 管理費

-

償却

-

更新料

-

情報公開日(更新日)

2016-01-05

売却テナントの基本情報

業態

ダイニングレストラン

営業年数

-

営業時間

-

席数

-

コメント

-

この案件の取り扱い会社

募集終了しました

別の案件を探す
相談0円 居抜きで売却するなら、早めのご相談がおすすめです! 詳しく見る