受付時間:平日9時~17時
売却マイページ
譲渡No.5713

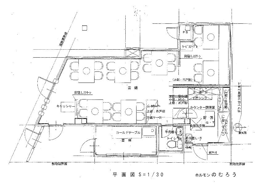
大田区の焼き肉の居抜き売却物件の案件情報 賃貸条件良好!武蔵新田焼肉店の居抜き店舗です!

案件概要

最寄り駅

武蔵新田 (東急多摩川線)
徒歩3

現賃料 / 坪単価

- / 9,576

面積 坪(㎡)

18坪59.0m2

希望譲渡額

85万円

前業態

焼き肉

募集終了しました

案件詳細情報

所在地

東京23区 大田区

最寄り駅

武蔵新田 (東急多摩川線) 徒歩3分

現賃料 / 坪単価

- / 9,576円

階数 / 建物

地上1階 /

面積 坪(㎡)

18坪59.0m2

構造

鉄骨造

保証金・敷金

-

契約期間

定借5年(再契約可)

礼金

-

希望譲渡額

85万円

共益費 / 管理費

-

償却

-

更新料

-

情報公開日(更新日)

2015-09-18

現テナントの基本情報

業態

焼き肉

営業年数

-

営業時間

-

席数

-

コメント

-

この案件の取り扱い会社

募集終了しました

別の案件を探す
相談0円 居抜きで売却するなら、早めのご相談がおすすめです! 詳しく見る