受付時間:平日9時~17時
売却マイページ
譲渡No.5303

豊島区のダイニングバーの居抜き売却物件の案件情報 池袋駅から徒歩4分!25坪の空中階!ダイニングバーの居抜き店舗です!

案件概要

最寄り駅

池袋 (JR山手線)
徒歩4

現賃料 / 坪単価

- / 17,319

面積 坪(㎡)

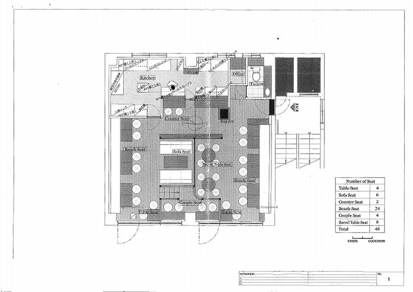
24.94坪82.46m2

希望譲渡額

54万円

前業態

ダイニングバー

募集終了しました

案件詳細情報

所在地

東京23区 豊島区

最寄り駅

池袋 (JR山手線) 徒歩4分

現賃料 / 坪単価

- / 17,319円

階数 / 建物

地上4階 / 地上5地下1階建

面積 坪(㎡)

24.94坪82.46m2

構造

鉄筋コンクリート造

保証金・敷金

-

契約期間

3年間

礼金

-

希望譲渡額

54万円

共益費 / 管理費

-

償却

-

更新料

-

情報公開日(更新日)

2015-03-02

売却テナントの基本情報

業態

ダイニングバー

営業年数

-

営業時間

-

席数

-

コメント

-

この案件の取り扱い会社

募集終了しました

別の案件を探す
相談0円 居抜きで売却するなら、早めのご相談がおすすめです! 詳しく見る