受付時間:平日9時~17時
売却マイページ
譲渡No.4958

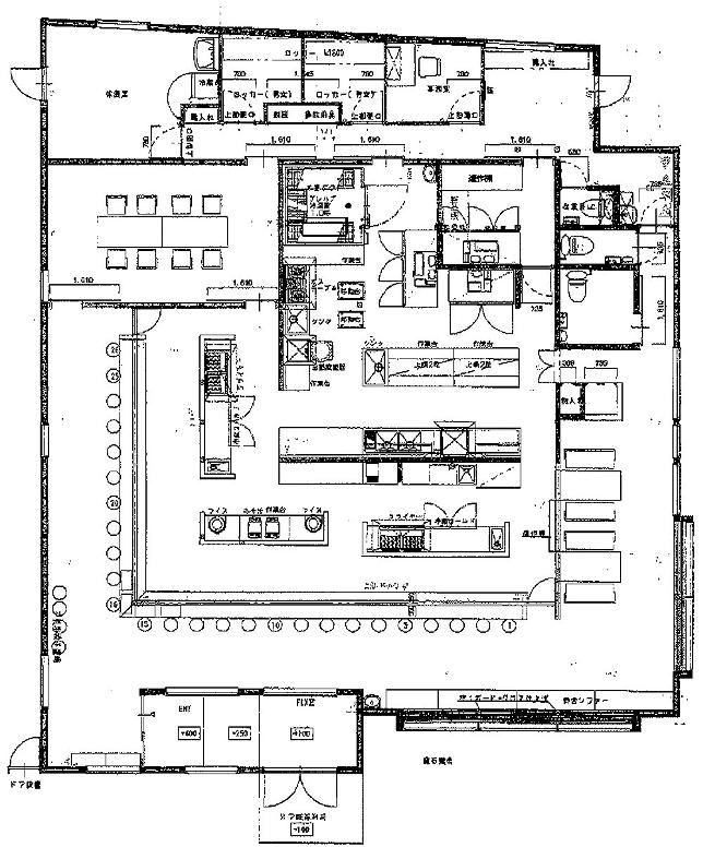
ふじみ野市の和食、天ぷらの居抜き売却物件の案件情報 国道沿い、和食店居抜き店舗!

案件概要

最寄り駅

上福岡 (東武東上線)
徒歩12

現賃料 / 坪単価

- / 9,088

面積 坪(㎡)

71.3坪235.7m2

希望譲渡額

150万円

前業態

和食、天ぷら

募集終了しました

案件詳細情報

所在地

埼玉県 ふじみ野市

最寄り駅

上福岡 (東武東上線) 徒歩12分

現賃料 / 坪単価

- / 9,088円

階数 / 建物

地上1階 /

面積 坪(㎡)

71.3坪235.7m2

構造

保証金・敷金

-

契約期間

5年間

礼金

-

希望譲渡額

150万円

共益費 / 管理費

-

償却

-

更新料

-

情報公開日(更新日)

2014-06-20

売却テナントの基本情報

業態

和食、天ぷら

営業年数

-

営業時間

-

席数

-

コメント

-

この案件の取り扱い会社

募集終了しました

別の案件を探す
相談0円 居抜きで売却するなら、早めのご相談がおすすめです! 詳しく見る