受付時間:平日9時~17時
売却マイページ
譲渡No.4405

川崎市川崎区の中華料理の居抜き売却物件の案件情報 仲見世通り沿い!一階路面店舗

案件概要

最寄り駅

川崎 (JR京浜東北・根岸線)
徒歩5

現賃料 / 坪単価

- / 34,731

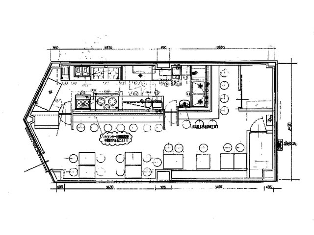
面積 坪(㎡)

13坪43.0m2

希望譲渡額

105万円

前業態

中華料理

募集終了しました

案件詳細情報

所在地

神奈川県 川崎市川崎区

最寄り駅

川崎 (JR京浜東北・根岸線) 徒歩5分

現賃料 / 坪単価

- / 34,731円

階数 / 建物

地上1階 /

面積 坪(㎡)

13坪43.0m2

構造

鉄筋コンクリート造

保証金・敷金

-

契約期間

定借8年

礼金

-

希望譲渡額

105万円

共益費 / 管理費

-

償却

-

更新料

-

情報公開日(更新日)

2013-10-28

現テナントの基本情報

業態

中華料理

営業年数

-

営業時間

-

席数

-

コメント

-

この案件の取り扱い会社

募集終了しました

別の案件を探す
相談0円 居抜きで売却するなら、早めのご相談がおすすめです! 詳しく見る