受付時間:平日9時~17時
売却マイページ
譲渡No.4287

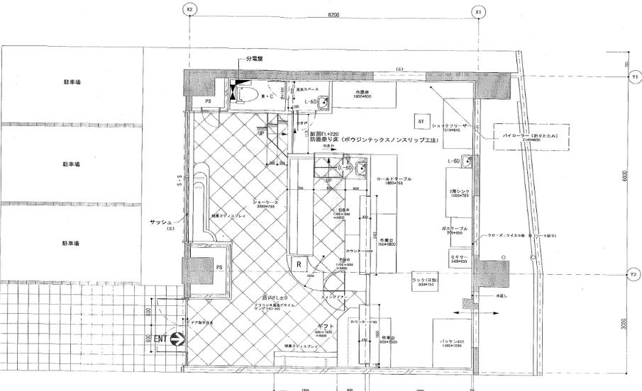
横浜市緑区のパティスリーの居抜き売却物件の案件情報 内装、設備が充実している店舗です!同業態であれば即営業可能です!!

案件概要

最寄り駅

長津田 (東急田園都市線)
徒歩10

現賃料 / 坪単価

- / 10,418

面積 坪(㎡)

22坪72.0m2

希望譲渡額

120万円

前業態

パティスリー

募集終了しました

案件詳細情報

所在地

神奈川県 横浜市緑区

最寄り駅

長津田 (東急田園都市線) 徒歩10分

長津田 (JR横浜線) 徒歩10分

現賃料 / 坪単価

- / 10,418円

階数 / 建物

地上1階 / 地上4階建

面積 坪(㎡)

22坪72.0m2

構造

鉄筋コンクリート造

保証金・敷金

-

契約期間

5年

礼金

-

希望譲渡額

120万円

共益費 / 管理費

-

償却

-

更新料

-

情報公開日(更新日)

2013-08-06

売却テナントの基本情報

業態

パティスリー

営業年数

-

営業時間

-

席数

-

コメント

-

この案件の取り扱い会社

募集終了しました

別の案件を探す
相談0円 居抜きで売却するなら、早めのご相談がおすすめです! 詳しく見る