受付時間:平日9時~17時
売却マイページ
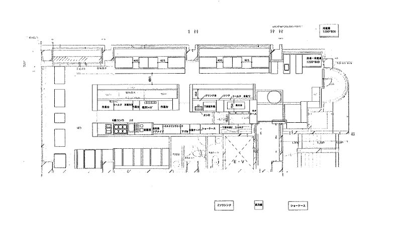
譲渡No.3960

大田区の居酒屋の居抜き売却物件の案件情報 2階ですが、駅から至近の立地。商店街至近のエリアになります。

案件概要

最寄り駅

蒲田 (JR京浜東北・根岸線)
徒歩2

現賃料 / 坪単価

- / 17,367

面積 坪(㎡)

36.28坪119.92m2

希望譲渡額

480万円

前業態

居酒屋

募集終了しました

案件詳細情報

所在地

東京23区 大田区

最寄り駅

蒲田 (JR京浜東北・根岸線) 徒歩2分

現賃料 / 坪単価

- / 17,367円

階数 / 建物

地上2階 / 地上5階建

面積 坪(㎡)

36.28坪119.92m2

構造

鉄筋コンクリート造

保証金・敷金

-

契約期間

3年

礼金

-

希望譲渡額

480万円

共益費 / 管理費

-

償却

-

更新料

-

情報公開日(更新日)

2013-02-08

現テナントの基本情報

業態

居酒屋

営業年数

-

営業時間

-

席数

-

コメント

-

この案件の取り扱い会社

募集終了しました

別の案件を探す
相談0円 居抜きで売却するなら、早めのご相談がおすすめです! 詳しく見る