受付時間:平日9時~17時
売却マイページ
譲渡No.3880

文京区の創作料理の居抜き売却物件の案件情報 蔵前橋通り沿い1階店舗。神田明神至近のエリアになります。

案件概要

最寄り駅

末広町 (東京メトロ銀座線)
徒歩5

現賃料 / 坪単価

- / 12,000

面積 坪(㎡)

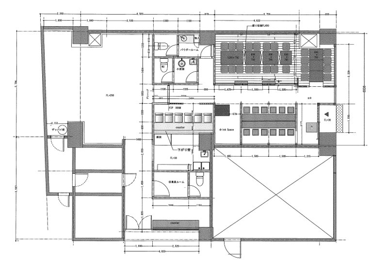
32坪106.0m2

希望譲渡額

0万円

前業態

創作料理

募集終了しました

案件詳細情報

所在地

東京23区 文京区

最寄り駅

末広町 (東京メトロ銀座線) 徒歩5分

お茶の水 (JR中央線) 徒歩6分

現賃料 / 坪単価

- / 12,000円

階数 / 建物

地上1階 / 地上8階建

面積 坪(㎡)

32坪106.0m2

構造

鉄骨鉄筋コンクリート造

保証金・敷金

-

契約期間

2年

礼金

-

希望譲渡額

0万円

共益費 / 管理費

-

償却

-

更新料

-

情報公開日(更新日)

2013-02-08

現テナントの基本情報

業態

創作料理

営業年数

-

営業時間

-

席数

-

コメント

-

この案件の取り扱い会社

募集終了しました

別の案件を探す
相談0円 居抜きで売却するなら、早めのご相談がおすすめです! 詳しく見る