受付時間:平日9時~17時
売却マイページ
譲渡No.3571

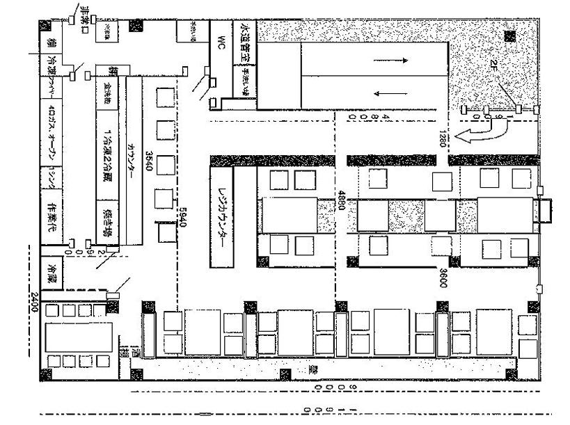
大和市の居酒屋の居抜き売却物件の案件情報 駅徒歩1分以内、視認性も良い好立地の居抜き情報です。

案件概要

最寄り駅

南林間 (小田急江ノ島線)
徒歩1

現賃料 / 坪単価

- / 8,576

面積 坪(㎡)

25.71坪84.99m2

希望譲渡額

98万円

前業態

居酒屋

募集終了しました

案件詳細情報

所在地

神奈川県 大和市

最寄り駅

南林間 (小田急江ノ島線) 徒歩1分

現賃料 / 坪単価

- / 8,576円

階数 / 建物

地上2階 /

面積 坪(㎡)

25.71坪84.99m2

構造

保証金・敷金

-

契約期間

3年

礼金

-

希望譲渡額

98万円

共益費 / 管理費

-

償却

-

更新料

-

情報公開日(更新日)

2013-04-30

現テナントの基本情報

業態

居酒屋

営業年数

-

営業時間

-

席数

-

コメント

-

この案件の取り扱い会社

募集終了しました

別の案件を探す
相談0円 居抜きで売却するなら、早めのご相談がおすすめです! 詳しく見る