受付時間:平日9時~17時
売却マイページ
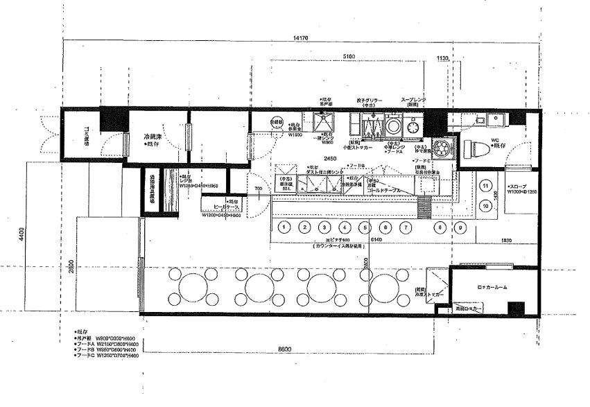
譲渡No.3450

江戸川区のラーメンの居抜き売却物件の案件情報 店舗周辺の人通り多数!ラーメン店譲渡情報です!

案件概要

最寄り駅

西葛西 (東京メトロ東西線)
徒歩11

現賃料 / 坪単価

- / 11,563

面積 坪(㎡)

21.62坪71.47m2

希望譲渡額

280万円

前業態

ラーメン

募集終了しました

案件詳細情報

所在地

東京23区 江戸川区

最寄り駅

西葛西 (東京メトロ東西線) 徒歩11分

現賃料 / 坪単価

- / 11,563円

階数 / 建物

地上1階 /

面積 坪(㎡)

21.62坪71.47m2

構造

保証金・敷金

-

契約期間

3年

礼金

-

希望譲渡額

280万円

共益費 / 管理費

-

償却

-

更新料

-

情報公開日(更新日)

2012-06-25

現テナントの基本情報

業態

ラーメン

営業年数

-

営業時間

-

席数

-

コメント

-

この案件の取り扱い会社

募集終了しました

別の案件を探す
相談0円 居抜きで売却するなら、早めのご相談がおすすめです! 詳しく見る