受付時間:平日9時~17時
売却マイページ
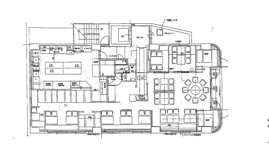
譲渡No.2724

新座市の中華の居抜き売却物件の案件情報 3階になりますが、駅からすぐの立地になります。視認性抜群です!

案件概要

最寄り駅

志木 (東武東上線)
徒歩1

現賃料 / 坪単価

- / 10,000

面積 坪(㎡)

49.87坪164.87m2

希望譲渡額

700万円

前業態

中華

募集終了しました

案件詳細情報

所在地

埼玉県 新座市

最寄り駅

志木 (東武東上線) 徒歩1分

現賃料 / 坪単価

- / 10,000円

階数 / 建物

地上3階 / 地上7階建

面積 坪(㎡)

49.87坪164.87m2

構造

鉄骨鉄筋コンクリート造

保証金・敷金

-

契約期間

3年

礼金

-

希望譲渡額

700万円

共益費 / 管理費

-

償却

-

更新料

-

情報公開日(更新日)

2011-07-12

売却テナントの基本情報

業態

中華

営業年数

-

営業時間

-

席数

-

コメント

-

この案件の取り扱い会社

募集終了しました

別の案件を探す
相談0円 居抜きで売却するなら、早めのご相談がおすすめです! 詳しく見る