受付時間:平日9時~17時
売却マイページ
譲渡No.12159

大阪市港区の 居酒屋の居抜き売却物件の案件情報 朝潮橋駅徒歩7分!居酒屋居抜き物件!

案件概要

最寄り駅

朝潮橋 (地下鉄中央線)
徒歩7

現賃料 / 坪単価

18.7万円 / 8,152

面積 坪(㎡)

22.94坪75.84m2

希望譲渡額

495万円

前業態

 居酒屋

この案件へ問い合わせる

問い合わせには飲食店ドットコム会員登録が必要です。
無料会員登録ログイン

案件詳細情報

所在地

大阪府 大阪市港区

最寄り駅

朝潮橋 (地下鉄中央線) 徒歩7分

現賃料 / 坪単価

18.7万円 / 8,152円

階数 / 建物

地上1階 / 地上3階建

面積 坪(㎡)

22.94坪75.84m2

構造

鉄骨造

保証金・敷金

相談

契約期間

礼金

希望譲渡額

495万円

共益費 / 管理費

償却

更新料

情報公開日(更新日)

2026-02-20

現テナントの基本情報

業態

 居酒屋

営業年数

15.2年

営業時間

17:00 - 00:00

席数

30席

コメント

朝潮橋駅徒歩7分!居酒屋居抜き物件!
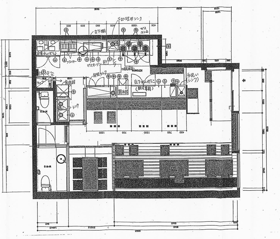
みなと通りに面する1階路面店!
和居酒屋居抜き、とても洗礼された落ち着いた内装です。
トイレ男女別。
カウンター8席、テーブル16席、個室6席あり。
--------------------------------------------------------------------------------
※賃貸条件については現状のものとなりますので、変更の可能性があります。
※取扱会社規定の賃貸借契約手数料、譲渡契約手数料が発生します。
※現在営業中の店舗もありますので、店舗への連絡、従業員及び、関係者への物件に関するお問い合せ、
写真撮影、店内での本物件に関する話題等、営業に支障をきたす行為は固く禁止致します。

この案件の取り扱い会社

太洋土地建物株式会社

大阪府大阪市中央区北久宝寺町4-2-2-久宝ビル-3階

担当者:加藤

この案件へ問い合わせる

問い合わせには飲食店ドットコム会員登録が必要です。
無料会員登録ログイン

相談0円 居抜きで売却するなら、早めのご相談がおすすめです! 詳しく見る