受付時間:平日9時~17時
売却マイページ
譲渡No.11989

国立市の カフェの居抜き売却物件の案件情報 国立駅徒歩5分!カフェ居抜き物件!

案件概要

最寄り駅

国立 (JR中央線)
徒歩5

現賃料 / 坪単価

22.55万円 / 14,006

面積 坪(㎡)

16.1坪53.23m2

希望譲渡額

50万円

前業態

 カフェ

この案件へ問い合わせる

問い合わせには飲食店ドットコム会員登録が必要です。
無料会員登録ログイン

案件詳細情報

所在地

東京都下 国立市

最寄り駅

国立 (JR中央線) 徒歩5分

現賃料 / 坪単価

22.55万円 / 14,006円

階数 / 建物

地上2階 / 地上3階建

面積 坪(㎡)

16.1坪53.23m2

構造

鉄筋コンクリート造

保証金・敷金

150万円

契約期間

3年

礼金

1ヶ月

希望譲渡額

50万円

共益費 / 管理費

5500円/月

償却

10%

更新料

1ヶ月+事務手数料3,000円(税別)

情報公開日(更新日)

2026-02-15

現テナントの基本情報

業態

 カフェ

営業年数

10年

営業時間

12:00 - 17:00

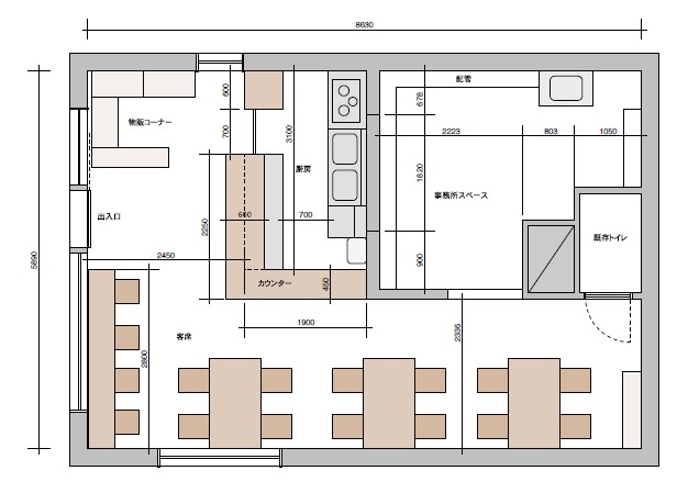
席数

16席

コメント

国立駅徒歩5分!カフェ居抜き物件!
駅からもほど近く、通りから店舗へ続く専用階段もございます。
ランチやカフェタイムの需要が多く、同業態のオープンにオススメです。
・上に居住者の方が住んでいるため、ライブ等の音が出るものはNG
・営業時間20時まで
※詳しくはお問い合わせください。
--------------------------------------------------------------------------------
※賃貸条件については現状のものとなりますので、変更の可能性があります。
※取扱会社規定の賃貸借契約手数料、譲渡契約手数料が発生します。
※現在営業中の店舗もありますので、店舗への連絡、従業員及び、関係者への物件に関するお問い合せ、
写真撮影、店内での本物件に関する話題等、営業に支障をきたす行為は固く禁止致します。

この案件の取り扱い会社

株式会社エイトシナジー

東京都港区赤坂8-4-7-アパートメントカーム7C

担当者:店舗担当者

この案件へ問い合わせる

問い合わせには飲食店ドットコム会員登録が必要です。
無料会員登録ログイン

別の案件を探す
相談0円 居抜きで売却するなら、早めのご相談がおすすめです! 詳しく見る