受付時間:平日9時~17時
売却マイページ
譲渡No.11353

横浜市神奈川区の和食の居抜き売却物件の案件情報 東白楽駅3分!東神奈川駅徒歩10分!和食店居抜き物件!

この案件の反響

ご相談から募集開始までの期間

1日

問い合わせ数

13件

募集開始から売却までの期間

非公開

案件概要

最寄り駅

東白楽 (東急東横線)
徒歩3

現賃料 / 坪単価

- / 9,790

面積 坪(㎡)

12.36坪40.87m2

希望譲渡額

相談

前業態

和食

募集終了しました

案件詳細情報

所在地

神奈川県 横浜市神奈川区

最寄り駅

東白楽 (東急東横線) 徒歩3分

東神奈川 (JR京浜東北・根岸線) 徒歩10分

現賃料 / 坪単価

- / 9,790円

階数 / 建物

地上1階 / 地上4階建

面積 坪(㎡)

12.36坪40.87m2

構造

RC造

保証金・敷金

-

契約期間

普通3年

礼金

-

希望譲渡額

相談

共益費 / 管理費

-

償却

-

更新料

-

情報公開日(更新日)

2025-04-17

売却テナントの基本情報

業態

和食

営業年数

15年

営業時間

18:00 - 23:00

席数

8席

コメント

東白楽駅3分!東神奈川駅徒歩10分!和食店居抜き物件!
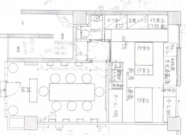
撤去物:縦型冷蔵庫、冷蔵ショーケース、冷凍ストッカー、ワインセラー、イス、テーブル
懸念トラブル:無
業態制限:重飲食相談
営業時間制限:無
席数:テーブル8席
ガス:6号
ダクト:直吹き
グリスト:埋設
防水:有
※詳しくはお問い合わせください。
--------------------------------------------------------------------------------
※賃貸条件については現状のものとなりますので、変更の可能性があります。
※取扱会社規定の賃貸借契約手数料、譲渡契約手数料が発生します。
※現在営業中の店舗もありますので、店舗への連絡、従業員及び、関係者への物件に関するお問い合せ、
写真撮影、店内での本物件に関する話題等、営業に支障をきたす行為は固く禁止致します。

この案件の取り扱い会社

募集終了しました

あなたにおすすめの案件

別の案件を探す
相談0円 居抜きで売却するなら、早めのご相談がおすすめです! 詳しく見る