受付時間:平日9時~17時
売却マイページ
譲渡No.11352

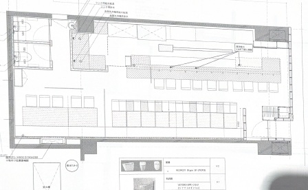
横浜市神奈川区の日本料理の居抜き売却物件の案件情報 東白楽駅徒歩3分!和食店居抜き物件!

案件概要

最寄り駅

東白楽 (東急東横線)
徒歩3

現賃料 / 坪単価

- / 11,424

面積 坪(㎡)

20.22坪66.83m2

希望譲渡額

250万円

前業態

日本料理

募集終了しました

案件詳細情報

所在地

神奈川県 横浜市神奈川区

最寄り駅

東白楽 (東急東横線) 徒歩3分

東神奈川 (JR京浜東北・根岸線) 徒歩10分

現賃料 / 坪単価

- / 11,424円

階数 / 建物

地上1階 / 地上4階建

面積 坪(㎡)

20.22坪66.83m2

構造

RC造

保証金・敷金

-

契約期間

普通3年

礼金

-

希望譲渡額

250万円

共益費 / 管理費

-

償却

-

更新料

-

情報公開日(更新日)

2025-02-03

現テナントの基本情報

業態

日本料理

営業年数

-

営業時間

-

席数

-

コメント

-

この案件の取り扱い会社

募集終了しました

別の案件を探す
相談0円 居抜きで売却するなら、早めのご相談がおすすめです! 詳しく見る