受付時間:平日9時~17時
売却マイページ
譲渡No.11148

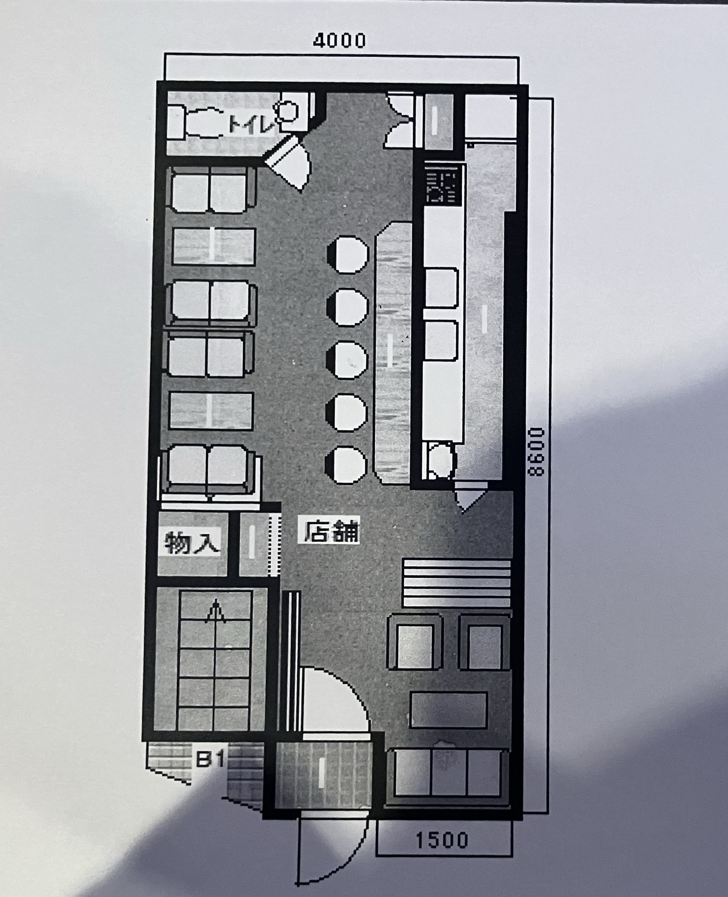
北区のスナックの居抜き売却物件の案件情報 十条駅徒歩8分!スナック居抜き物件!

この案件の反響

ご相談から募集開始までの期間

1日

問い合わせ数

7件

募集開始から売却までの期間

24日

案件概要

最寄り駅

十条 (JR埼京線)
徒歩8

現賃料 / 坪単価

- / 10,650

面積 坪(㎡)

9.39坪31.0m2

希望譲渡額

相談

前業態

スナック

募集終了しました

案件詳細情報

所在地

東京23区 北区

最寄り駅

十条 (JR埼京線) 徒歩8分

現賃料 / 坪単価

- / 10,650円

階数 / 建物

地上1階 / 地上2階建

面積 坪(㎡)

9.39坪31.0m2

構造

木造

保証金・敷金

-

契約期間

3年(普通賃貸借)

礼金

-

希望譲渡額

相談

共益費 / 管理費

-

償却

-

更新料

-

情報公開日(更新日)

2024-11-12

売却テナントの基本情報

業態

スナック

営業年数

15年

営業時間

19:00~24:00

席数

コメント

十条駅徒歩8分!スナック居抜き物件!
十条仲通り沿いの階路面店舗となっております。
店内は綺麗で清潔感のある内装となっており、同業態であればすぐに営業が可能です。
※お早めにお問い合わせください。
--------------------------------------------------------------------------------
※賃貸条件については現状のものとなりますので、変更の可能性があります。
※取扱会社規定の賃貸借契約手数料、譲渡契約手数料が発生します。
※現在営業中の店舗もありますので、店舗への連絡、従業員及び、関係者への物件に関するお問い合せ、
写真撮影、店内での本物件に関する話題等、営業に支障をきたす行為は固く禁止致します。

この案件の取り扱い会社

募集終了しました

あなたにおすすめの案件

別の案件を探す
相談0円 居抜きで売却するなら、早めのご相談がおすすめです! 詳しく見る