受付時間:平日9時~17時
売却マイページ
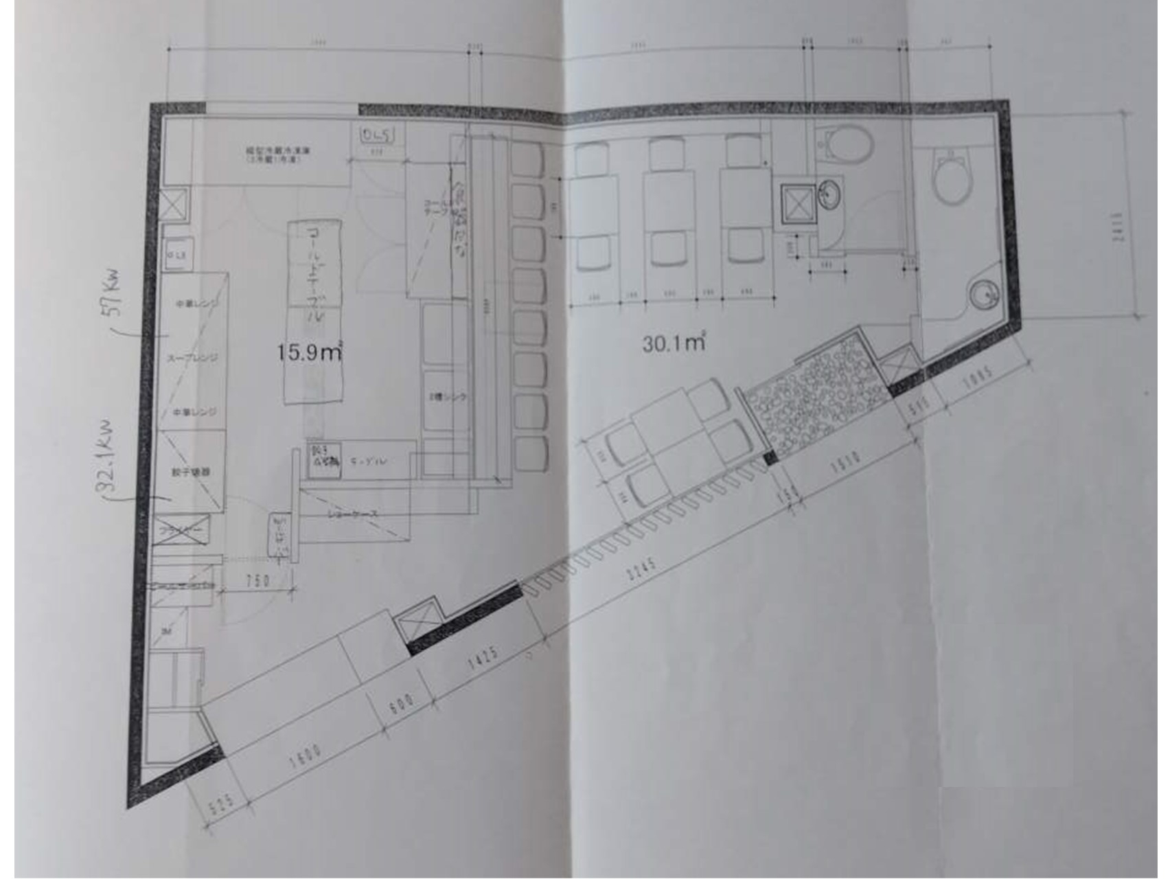
譲渡No.11030

狛江市の中華料理の居抜き売却物件の案件情報 喜多見駅より徒歩3分!中華料理居抜き物件!

案件概要

最寄り駅

喜多見 (小田急本線・小田原線)
徒歩3

現賃料 / 坪単価

- / 8,653

面積 坪(㎡)

15.89坪52.53m2

希望譲渡額

480万円

前業態

中華料理

募集終了しました

案件詳細情報

所在地

東京都下 狛江市

最寄り駅

喜多見 (小田急本線・小田原線) 徒歩3分

狛江 (小田急本線・小田原線) 徒歩12分

現賃料 / 坪単価

- / 8,653円

階数 / 建物

地上1階 / 地上3階建

面積 坪(㎡)

15.89坪52.53m2

構造

鉄骨造

保証金・敷金

-

契約期間

3年

礼金

-

希望譲渡額

480万円

共益費 / 管理費

-

償却

-

更新料

-

情報公開日(更新日)

2024-09-20

売却テナントの基本情報

業態

中華料理

営業年数

11年

営業時間

【昼】11:30〜14:30
【夜】17:00〜23:00

席数

20席

コメント

喜多見駅より徒歩3分!中華料理居抜き物件!
地元密着店舗!20年の営業実績あり!
テイクアウト用の窓口あり!1階路面店!
ダクト屋上、グリスト埋設。
--------------------------------------------------------------------------------
※賃貸条件については現状のものとなりますので、変更の可能性があります。
※取扱会社規定の賃貸借契約手数料、譲渡契約手数料が発生します。
※現在営業中の店舗もありますので、店舗への連絡、従業員及び、関係者への物件に関するお問い合せ、
写真撮影、店内での本物件に関する話題等、営業に支障をきたす行為は固く禁止致します。

この案件の取り扱い会社

募集終了しました

あなたにおすすめの案件

別の案件を探す
相談0円 居抜きで売却するなら、早めのご相談がおすすめです! 詳しく見る