受付時間:平日9時~17時
売却マイページ
譲渡No.10650

東大和市の居酒屋の居抜き売却物件の案件情報 東大和市駅より徒歩3分!居酒屋居抜き物件!

この案件の反響

ご相談から募集開始までの期間

5日

問い合わせ数

2件

募集開始から売却までの期間

46日

案件概要

最寄り駅

東大和市 (西武拝島線)
徒歩3

現賃料 / 坪単価

- / 12,383

面積 坪(㎡)

11.37坪37.6m2

希望譲渡額

150万円

前業態

居酒屋

募集終了しました

案件詳細情報

所在地

東京都下 東大和市

最寄り駅

東大和市 (西武拝島線) 徒歩3分

現賃料 / 坪単価

- / 12,383円

階数 / 建物

地上1階 / 地上3階建

面積 坪(㎡)

11.37坪37.6m2

構造

RC造

保証金・敷金

-

契約期間

3年

礼金

-

希望譲渡額

150万円

共益費 / 管理費

-

償却

-

更新料

-

情報公開日(更新日)

2024-04-16

売却テナントの基本情報

業態

居酒屋

営業年数

15.6年

営業時間

【昼】11:30~13:45
【夜】18:00~24:00

席数

16席

コメント

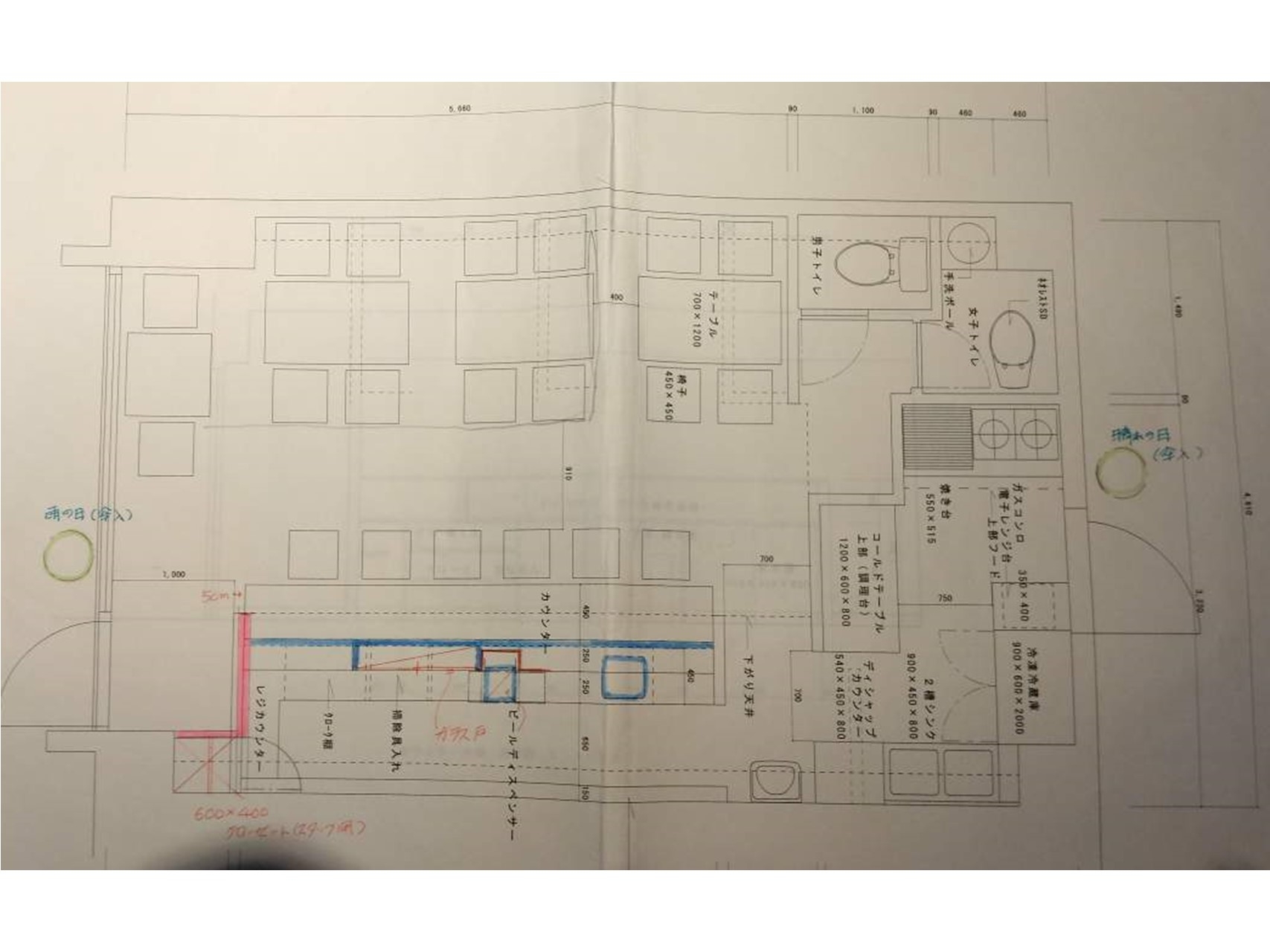
東大和市駅より徒歩3分!居酒屋居抜き物件!
オープンから15年以上の地元密着店舗でございます!

風営系NGです。
電灯・動力あり、プロパンガス、ダクト直吹き、グリスト置型。
【譲渡品】
基本一式、リース品なし。

※保証会社・火災保険要加入
--------------------------------------------------------------------------------
※賃貸条件については現状のものとなりますので、変更の可能性があります。
※取扱会社規定の賃貸借契約手数料、譲渡契約手数料が発生します。
※現在営業中の店舗もありますので、店舗への連絡、従業員及び、関係者への物件に関するお問い合せ、
写真撮影、店内での本物件に関する話題等、営業に支障をきたす行為は固く禁止致します。

この案件の取り扱い会社

募集終了しました

あなたにおすすめの案件

別の案件を探す
相談0円 居抜きで売却するなら、早めのご相談がおすすめです! 詳しく見る