受付時間:平日9時~17時
売却マイページ
譲渡No.10260

江東区の海鮮丼の居抜き売却物件の案件情報 亀戸駅より徒歩5分!海鮮丼屋居抜き物件!

案件概要

最寄り駅

亀戸 (JR総武線)
徒歩5

現賃料 / 坪単価

- / 14,033

面積 坪(㎡)

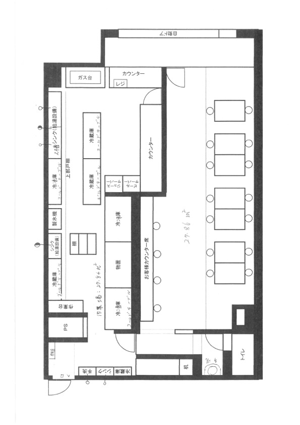
20.38坪67.38m2

希望譲渡額

350万円

前業態

海鮮丼

募集終了しました

案件詳細情報

所在地

東京23区 江東区

最寄り駅

亀戸 (JR総武線) 徒歩5分

亀戸 (東武亀戸線) 徒歩5分

現賃料 / 坪単価

- / 14,033円

階数 / 建物

地上1階 / 地上10階建

面積 坪(㎡)

20.38坪67.38m2

構造

鉄骨鉄筋コンクリート造

保証金・敷金

-

契約期間

3年

礼金

-

希望譲渡額

350万円

共益費 / 管理費

-

償却

-

更新料

-

情報公開日(更新日)

2023-11-07

売却テナントの基本情報

業態

海鮮丼

営業年数

7年

営業時間

11:00~22:00

席数

25席

コメント

譲渡金額が変更になりました!500万円⇒350万円!
亀戸駅より徒歩5分!海鮮丼屋居抜き物件!
主要道路に面した1階路面店舗でございます。
清潔感のある明るい内装!

・ガス4号
・ドライキッチン
・置き型グリストラップ
※業態は管理組合の承認が必要です。
※一部譲渡対象外の厨房設備がございます。詳しくはお問合せ下さい。
--------------------------------------------------------------------------------
※賃貸条件については現状のものとなりますので、変更の可能性があります。
※取扱会社規定の賃貸借契約手数料、譲渡契約手数料が発生します。
※現在営業中の店舗もありますので、店舗への連絡、従業員及び、関係者への物件に関するお問い合せ、
写真撮影、店内での本物件に関する話題等、営業に支障をきたす行為は固く禁止致します。

この案件の取り扱い会社

募集終了しました

あなたにおすすめの案件

別の案件を探す
相談0円 居抜きで売却するなら、早めのご相談がおすすめです! 詳しく見る